技术专题
废浆处理模块——絮凝加药系统
2月
27
2018
冠能固控是专业的固液分离设备与废弃泥浆环保处理设备的制造商,可满足全球各种资质出口认证、质量认证。目前已经出口至多个国家和地区,用户遍布全球多个泥浆处理施工现场。其中冠能废弃泥浆处理系统每年生产量达到50套以上,各种匹配的配套固液分离设备年产量达1000台以上。冠能固控废弃泥浆处理系统组成部分为:1、干燥筛模块。2、离心机模块。3、絮凝加药处理模块。4、泥浆输送模块。5、泥浆搅拌混合模块。6、储存中转模块。其中主要的核心设备为干燥筛模块、离心机模块、絮凝加药处理模块,本文着重介绍一下絮凝加药处理模块系统。
冠能 GNDU2000R 系列 20 尺箱式絮凝加药系统主要自动配置化学絮凝剂,用于辅助卧螺离心机分离泥浆中的细小颗粒,从而得到干净的水用于工业用途。或者用于油泥处理、分离油水泥等细小颗粒絮凝工况。
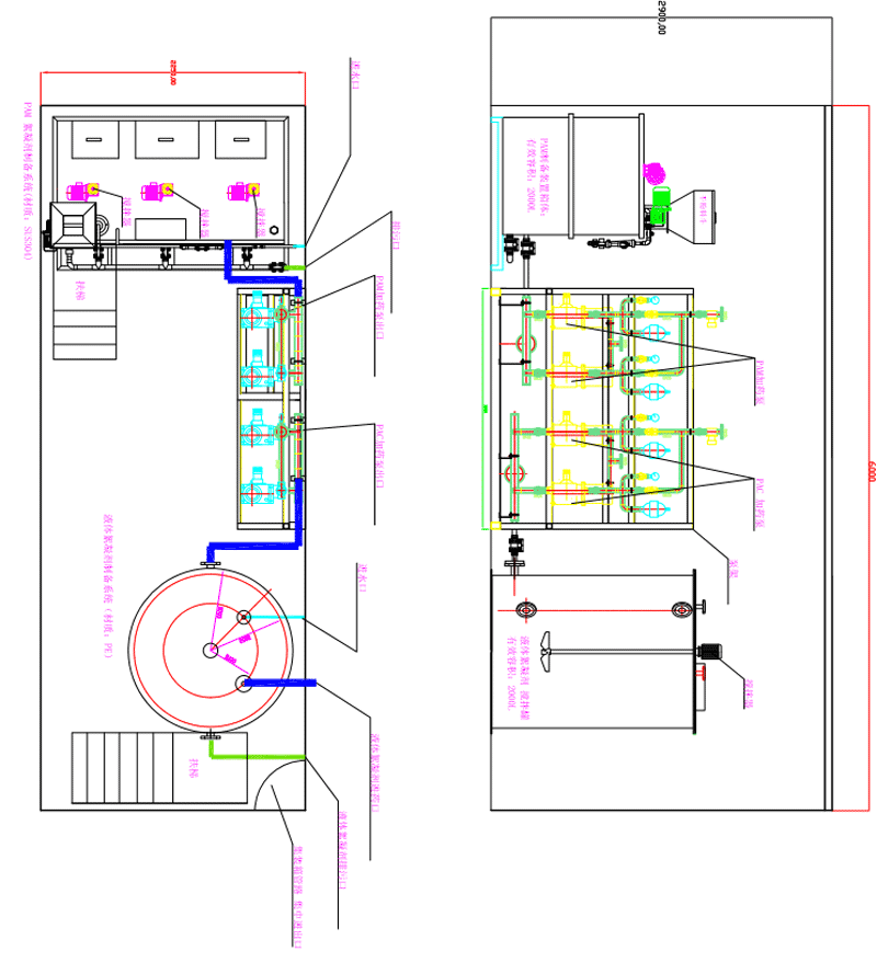
如下图所示:GNDU2000R絮凝加药系统(集装箱式)


通过使用上述GNDU2000R系列20 尺集装箱式絮凝加药系统配合冠能高速变频卧螺离心机,可以分离水基钻井泥浆中的超细颗粒,满足循环使用水的要求。对于废弃泥浆处理系统,冠能絮凝加药系统尤其重要,它可以帮助离心机处理泥浆变得干净,并且能够减少钻井废弃物的产生。从而降低整体的废弃泥浆后工序处理成本。

冠能固控PAM 全自动絮凝加药系统工作原理描述:
在自动配置药剂过程中,操作人员把药剂加到药剂配置箱中,启动系统后,药剂与水混合后 先进入到搅拌溶药箱,并在这里通过搅拌器进行充分搅拌和混合;当溶药箱充满后便自行溢流至熟化溶药箱,并在这里再一次搅拌混合处理;待熟化溶药箱充满后又自行溢流至溶药存储箱,这时配置好的药液便可通过加药泵投入到加药点上,已达到细小颗粒的絮凝加速沉淀进行废弃泥浆中 程度的固体排出。






