技术专题
废浆处理系统介绍
冠能固控撬装废浆处理系统是冠能公司根据用户需求,按照客户对处理后泥浆的要求进行设计、制造的用于废弃泥浆的循环净化撬装处理系统。本系统主要核心设备为用于粗颗粒筛分的GNZS594E-HB高频振动筛和GNLW363C-VFD的高速卧螺离心机(配合20尺絮凝加药系统来提升离心机的处理效果),及系统配套进料螺杆泵、撬装处理罐体、搅拌器等。根据客户对出料的具体要求,可以调整不同的絮凝药剂投加,保证出料达到客户预期的处理效果。
系统组成和参数:
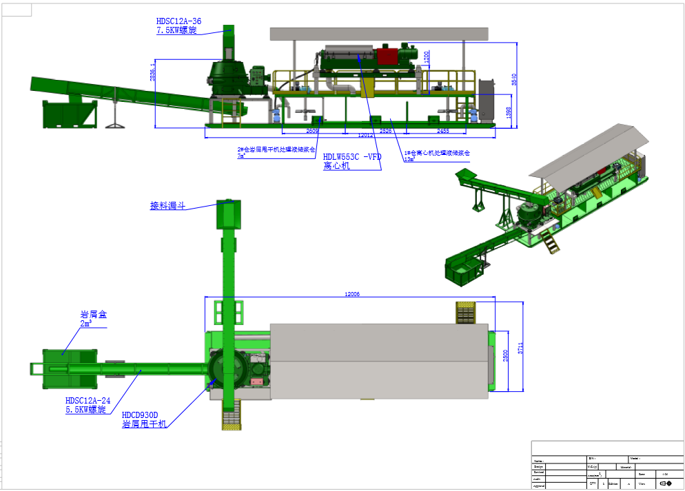
冠能固控油基岩屑不落地处理系统
冠能固控油基岩屑不落地处理系统由收集传输装置、甩干处理装置、离心分离装置及其他辅助装置组成。系统整体具有足够的刚性及稳定性,系统设备运转可靠,处理系统以GNLW453C-VFD大转股高速离心机和GNCD930D高速岩屑甩干机为核心处理设备组成。
主要作用原理:
1.钻机固控系统的振动筛、除泥除砂器、离心机等固相控制设备排除的岩屑经由收集传输装置收集并输送至甩干机进料的螺旋输送机内。
2.岩屑经螺旋送入甩干机内进行固液分离甩干处理,液体排入甩干机排液仓,固相经过出料口螺旋输送至岩屑箱收集。在甩干机排液仓液位达到警戒位时,自动启动离心分离装置进行姑爷精细化回收处理。
3.离心机排出的固项经过排渣槽外排收集,经过离心机处理后的清洁泥浆排入清液回收仓,当回收仓中的液相达到警戒位时经由输送装置外输回收继续钻井工作。
冠能固控油基岩屑不落地处理系统具有以下优势特点:
1、系统整体撬装设计,便于安装与运输,撬装可免拆卸设备整体吊装运输。 2、甩干机工作转速可达到900~1200r/min。 3、离心机工作转速3000r/min,转股长径比为3.42,石油行业大长径比设计。 4、系统进液排液可实现免人工自动化运转,人员只需要注意甩干机、离心机工作状态即可。 5、可适应50%含固量、2.2g/cm³高密度以上的油基岩屑处理工作,并可达到连续24小时连续工作状态。
冠能固控螺旋输送机
冠能固控多年致力于泥浆固控设备、废弃泥浆处理设备的研发生产工作,目前产品线涵盖40多个种类,涉及石油天然气钻采领域、建筑泥浆净化处理领域、含油污泥处理领域、河道清淤处理领域、固液废弃物环保领域、介质输送领域六大类专业型设备的加工制造。
下面介绍一款广泛应用输送领域的输送机械设备螺旋输送机,螺旋输送机的应用非常广泛,主要是利用旋转的螺旋叶片将进入被输送的物料推挤移动向壳体的另一端排出。螺旋输送机广泛应用于食品、医药、化工、造纸、环保、冶金、建材、石油、电力等行业。螺旋输送机类型多,可满足不同工况、不同物料的输送要求。
冠能固控的螺旋输送机与普通输送机制造厂商的区别在于冠能的生产加工制造标准为满足石油、矿山、海洋、化工等高危作业场所要求,所生产的螺旋输送机满足于美国石油协会API制造标准、满足欧盟出口CE认证标准、满足于澳大利亚国家安全与环保标准。冠能固控的螺旋输送机具有高耐磨、耐强酸强碱、耐油、维护简易等特点。
螺旋输送机参数表(可提供多种尺寸定制服务): 结构特点:1、结构简单,截面尺寸、体积较小,便于布置。 2、便于在不同位置加载或卸载,即可以设置多个加料口或卸料口。 3、操作安全、维护简便。 4、有较好的密封性、保持环境清洁。 5、输送易破碎物料时,破碎率较高。 6、输送物料时要克服物料的摩擦力,所以螺旋叶片有磨损。 7、具有高耐磨、耐强酸强碱、耐油等特性,可适应高危、粗糙工作场所。
含油污泥处理系统
星空网官网星空网官网星空网官网首页入口_星空(中国)入口_星空(中国)入口_星空(中国) (原唐山冠能机械设备有限公司),是一家主要生产以石油钻井为主的钻井液泥浆固控设备、废浆处理设备的企业,公司定位于国际和国内中高端固控行业市场参与者,公司在国际市场的产品销售份额远远高于国内同行,并形成了良好的口碑。公司总部位于北京 都机场40公里处的大厂潮白河工业区,是目前国内通过美国API认证并能同时制造离心干燥机和大转鼓高速离心机的生产厂家。
凭借冠能公司广泛的业务渠道,近两年来频繁接收到国内、国际等大量客户对油泥砂处理的需求。借助冠能公司在美国分公司的优势,冠能结合美国等国际前沿的油污泥处理方案和现场案例,研发出了一套完整的油泥处理系统。
经过此套系统处理完成后的固相含油率可控制在1-2%以内,液相中的固体含量可控制到0.3%以内,大大减少固相物质的含油率,也为后期的热解吸等工艺提供 的减量化保障,提高含油污泥的处理效率。
冠能石油诚邀行业内各级领导随时来公司考察交流。
更多冠能产品信息,请联系冠能固控.。
油水分离装置
冠能固控油水分离装置是冠能含油污泥废弃物处理系统的重要组成部分。主要作用是将前期油泥水废弃混合物,经过高频干燥筛和卧螺离心机两种设备预处理粗过滤后排出的清液进行二次油水分离处理。其处理效果明显,可满足现场的油、水单独回收的再利用要求。冠能固控油水分离装置是一种高性能,聚结设计,用于从含油废水中去除游离和分散的油滴。
1、结构及原理冠能固控油水分离装置是将油水混合物进入油水分离进水区并扩散分布。混合物进入聚结填料介质,其中建立了层流和正弦流,并且油侵入波纹聚结填料表面。当细小油滴积聚时,它们聚结成较大的油滴,通过聚结波纹向上升高,直到它们到达聚结填料的顶部,在那里油滴分离并升至水的表面。同时,固体遇到聚结填料并随着波纹向下滑动,落入波纹聚结填料下的V型料斗中。
利用油和水之间的密度差进行重力分离。油以斯托克斯沉降定律解释的速度与液体分离。该公式预测在一定的距离上,油滴将根据油滴尺寸的密度和尺寸,快速地通过水上升或沉降。
2、特点 1)可单独使用或与其他处理工艺(如乳化裂化,溶气气浮系统和澄清剂预处理)结合使用。 2)结构紧凑,占地面积小。 3)油水分离器可通过重力自流或泵输送出下一级。 3、参数序号
项目
参数
1
橇体尺寸
2363mm ×1016mm× 2007mm(L×W×H)
1.1
进口高度
1676mm
1.2
出口高度
1448mm
1.3
油出口高度
1600mm
1.4
罐体壁厚
6mm
2
连接口标准
GBT 9119-2010
3
设计 压 力
ATM
4
温 度 范 围
-20 deg F--122 deg F
5
干重
1195KG
6
操作重量
3763KG






